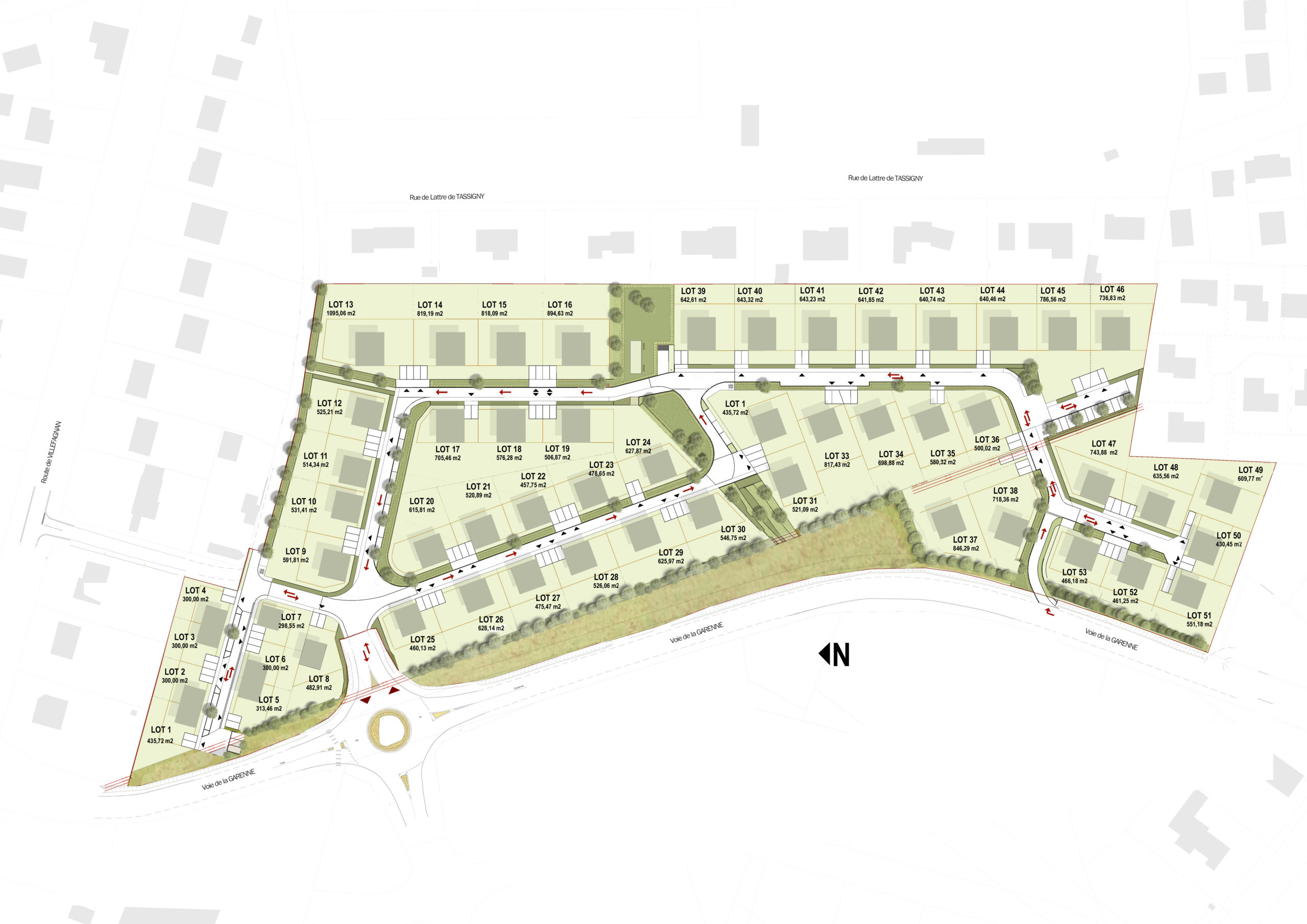
Un futur lotissement de près de 60 logements
La Commune de Ruffec est propriétaire de terrains d’une surface totale d’environ 4,7 hectares voie de la Garenne. Ces parcelles ont été classées en zone à urbaniser à vocation d’habitat par le Plan Local d’Urbanisme (PLU) de Ruffec, lequel comprend également une orientation d’aménagement et de programmation sur ce secteur.
La collectivité a dans un premier temps proposé les terrains à la vente pour la création d’un lotissement d’environ 60 logements. Un appel à projet en vue de la cession a été lancé fin septembre 2023 et s’est achevé mi-décembre 2023. Aucune candidature n’a été déposée. Les promoteurs contactés ont exprimé les difficultés liées au contexte, conduisant à leur réticence sur le portage d’une telle opération d’ensemble. En revanche, ils étaient éventuellement intéressés pour l’acquisition d’une quinzaine de lots.
De ce fait, la collectivité a fait le choix d’engager une réflexion pour un portage en régie de l’aménagement et de la viabilisation (lotissement communal) en vue de vendre par la suite en macro-lots et quelques lots individuels.
C’est dans ce cadre que la Commune de Ruffec a sollicité la SPL GAMA en vue de la réalisation d’une étude de faisabilité technique et financière.
Les objectifs généraux de ce nouveau quartier sont d’en faire :
- Un quartier d’habitat durable, qualitatif et résilient
- à travers un cahier des charges de cession du terrain à urbaniser, avec des règles simples et applicables, qui serait annexé à l’acte de vente ;
- par une éventuelle modification de l’OAP sectorielle du PLU.
- Un quartier d’habitat précurseur sur le plan de la qualité environnementale
- pour faire exemple et être réplicable à l’échelle de la commune.
Documents téléchargeables pour plus d’informations :
Document de présentation des scénarios du projet
Charte d’aménagement durable


